Diese helle und geräumige Wohnung mit zwei Schlafzimmern und zwei Bädern befindet sich in einer etablierten, privaten Wohnanlage in Lagos, die etwa 70 Wohnungen umfasst. Die 2007 nach hohem Standard errichtete Anlage bietet hervorragende Gemeinschaftseinrichtungen und ein hohes Maß an Komfort, wodurch sie sich ideal als ständiger Wohnsitz, Ferienhaus oder Anlageobjekt eignet.
Die Bewohner profitieren von einem großen gemeinsamen Unterhaltungsraum, einem großzügigen gefliesten zentralen Innenhof/Terrasse geeignet für Kinder sicher zu spielen, und eine Tiefgarage mit Toiletten, Autowaschanlagen, und Sie können leicht installieren Sie ein Elektrofahrzeug Ladestation; mit 1 großen zugewiesenen Parkplatz für diese apt 25sqm und 1 privaten Speicher 10sqm. Das Gebäude ist durch einen guten Aufzug mit direktem Zugang von der Garage serviert.
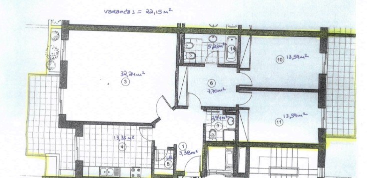
Die Wohnung ist gut gestaltet und mit natürlichem Licht gefüllt. Es öffnet sich in eine Eingangshalle, wo das erste Bad befindet sich, bequem auch für Gäste. Die voll ausgestattete Küche bietet reichlich Stauraum und hochwertige Elektrogeräte und grenzt an einen sehr geräumigen Wohn- und Essbereich (nach Süden ausgerichtet).
Ein zweiter Flur, der durch eine Tür abgetrennt ist, führt zum privaten Schlafbereich, der zwei wohlproportionierte Schlafzimmer und ein zweites Badezimmer umfasst (keines der Badezimmer ist en-suite). Diese Aufteilung bietet eine gute Trennung zwischen Wohn- und Schlafbereich, was die Privatsphäre und die Funktionalität verbessert.
Die Wohnung verfügt über schöne Parkettböden in allen Räumen, Klimaanlage in allen Zimmern und zwei große Balkone (insgesamt 22 m²) mit teilweisem Meerblick. Zu den weiteren Merkmalen gehören ein eingebauter Grillplatz und ein diskreter, geschlossener Raum für die Wäscheleine. Die Immobilie ist nach Südosten und Nordwesten ausgerichtet, so dass sie den ganzen Tag über sehr hell und gut belüftet ist.
Die Lage ist äußerst günstig, da alle Annehmlichkeiten leicht zu erreichen sind. Die historischen Stadtmauern und die charmante Altstadt sind etwa 800 Meter entfernt. Der nächstgelegene zentrale Strand ist ca. 1 km entfernt, während der beliebte Strand von Porto de Mós ca. 2 km entfernt ist. Der nächstgelegene Golfplatz ist nur 2,5 km entfernt, und die meisten Ziele in Lagos sind innerhalb von fünf Autominuten zu erreichen.
Lagos bietet einen außergewöhnlichen Lebensstil mit seinem schönen Yachthafen, renommierten Restaurants, Bars und Cafés, guten Einkaufsmöglichkeiten, Wassersport und einem örtlichen Zoo. Die Weltstädte Lissabon und Sevilla sind für Kurztrips leicht zu erreichen, und der internationale Flughafen Faro liegt etwa 50 Autominuten entfernt. Die Flugplätze in Lagos und Portimão bieten zusätzlichen Reisekomfort.
Dies ist eine ausgezeichnete Gelegenheit, eine gut gelegene, wartungsarme Wohnung in einer der begehrtesten Städte der Algarve zu erwerben, die sich sowohl für die Eigennutzung als auch für die Vermietung eignet.
IMMOBILIEN EIGENSCHAFTEN
WASSER
HEISSWASSERSYSTEM
ELEKTRIZITÄT
KLIMATISIERUNG
SHUTTERS
GARAGE
INNEN FREIZEIT
FAHRENDE ENTFERNUNGEN

2 mins

2 mins

5 mins

2 mins

2 mins

50 mins

HAVE QUESTIONS ABOUT THIS PROPERTY?
Schedule a call with our team! A dedicated advisor will contact you to provide all the necessary details and information about this property.
CONTACT FORM
Important notice: These particulars are not an offer or contract, nor part of one. The photographs show only certain parts of the property as they appeared at the time they were taken. Areas, measurements, layout plans and distances are for guidance only and should not be relied upon as a statement of fact. All property details have been provided by the seller and should not be considered factually accurate about the property, its condition or value. Exclusive Living Mediacao Imobiliaria Lda. holds no responsibility to the accuracy of the information and will not be held liable for any errors on any representation on the property. A buyer must not rely on this information without conducting an inspection or hiring professionals for surveys or legal services to verify all details and documentation prior to a property purchase.